Продажа здания (Осз) 720,4 м2 м. Китай-город (ЦАО).
Расположение: Отличная транспортная доступность: м. «Китай Город» (210 м), м. «Лубянка» (580 м), ост. «Метро Китай-город» (200 м), ост. «Ильинские ворота» (330 м).
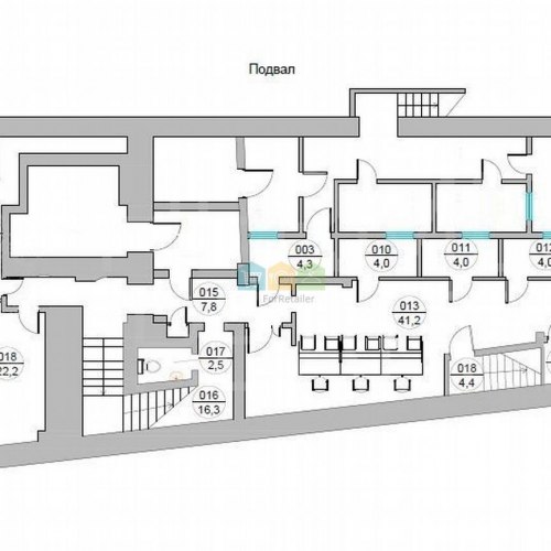
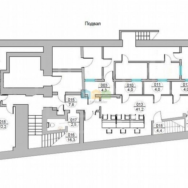
Описание: здание площадью 720,4 м2. Качественный современный ремонт. Отдельный вход с улицы. 2 этажа, мезонин, подвал. Смешанная планировка. Полезная площадь — 648 м2. Площадь 1-го этажа 198,7 м2, (h = 2,47 м). Площадь 2-го этажа 198,4 м2 (h = 3,1 м). Площадь подвала 163,4 м2 (h = 2,5 м). Площадь мезонина 159,9 м2 (h = 2,13 м).
Здание отлично подходит для арендного бизнеса, размещения банка, представительства компании, бизнес-центра, медицинской клиники или отеля.
Коммуникации: электроснабжение, водоснабжение, отопление, канализация, система кондиционирования, видеонаблюдение, современная система оповещения о пожаре и пожаротушения. Электрическая мощность — 75,5 квт.
Парковка: городская стихийная.
Земельный участок: Земельный участок общей площадью 272 кв. М в аренде. Право аренды до 17.07.2062 г. Разрешенное использование: эксплуатации здания в административных целях.
Звоните, ответим на Ваши вопросы и организуем показ в удобное для вас время!
Предложение с комиссией для покупателя. Объект №3100-929899.































