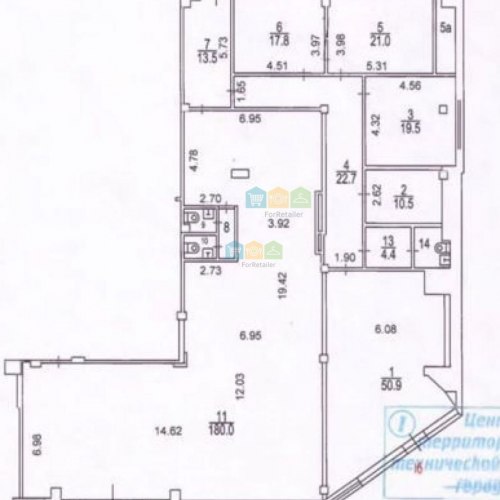
Предлагается в аренду помещение свободного назначения на улице Сергия Радонежского, ЦАО г. Москвы. Помещение расположено во встроенно-пристроенной части жилого дома.
До ближайшей станции метро «Площадь Ильича» — 5 минут пешком. 1-я линия домов, 3 отдельных входа, витрины, вывеска на фасаде, есть зона погрузки-разгрузки. Помещение предлагается с ремонтом после выезда продуктового магазина «Магнит», имеет зальную планировку. Потолки 3 метра, мощность 80 кВт.











