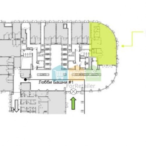
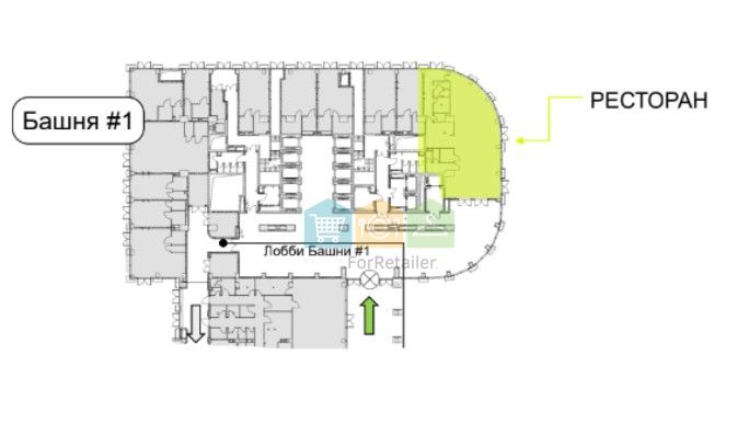
Сдается в аренду помещение свободного назначения 202.5 кв.м в бизнес-центре, который состоит их двух 24-х этажных офисных башен, объединенные двухуровневым стилобатом.
- Помещение подходит под ресторан
- Витражное остекление
- Высота потолков 4,10 м.
- Отделка: shell&core
- Мощность: 115 кВт.
Арендная ставкам 1 579 000 рублей/месяц.
Ндс включен в ставку.
Арендные каникулы обсуждаются.







