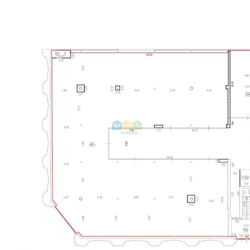
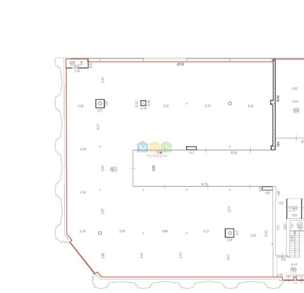
В аренду предлагается помещение свободного назначения в ТЦ "РМ" в 300 метрах от главного входа ВДНХ.
- Возможность организовать отдельный вход с первого этажа
- Рекламные возможности
- Сложившийся трафик
- Открытая планировка
- Потолки от 3м
Арендная ставка - 3 000 000 руб.















